Straubing, Deutschland
HOTEL villa
Massivbau
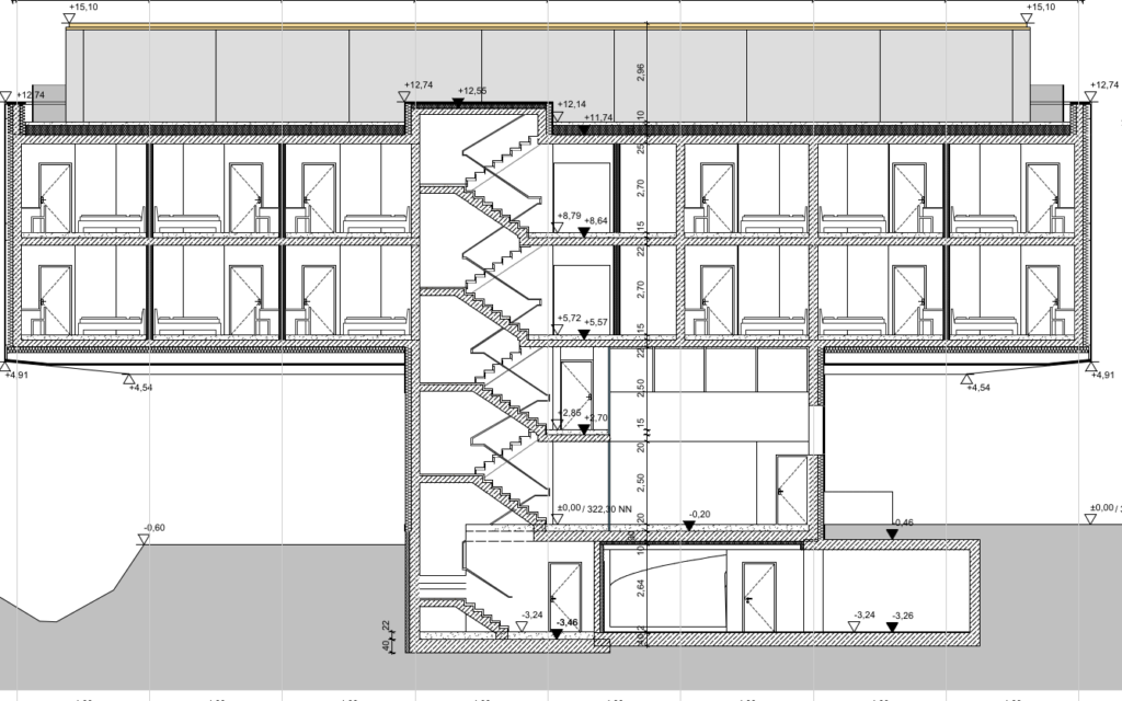
Neubau eines Hotels + Tiefgarage mit auskragenden Baukörper in Straubing.
Das Hotel in Straubing zeichnet sich durch eine anspruchsvolle Ortbetonkonstruktion aus, bei der Wand- und Deckenscheiben aus Stahlbeton eingesetzt wurden. Die Obergeschosse kragen dabei aus dem Baukörper heraus.
Die Gebäudeaussteifung wurde durch die gezielte Verbindung der Stahlbetondeckenscheiben mit den Längs- und Querwänden aus Ortbeton realisiert. Dadurch wird eine optimale Lastverteilung gewährleistet und für die notwendige Stabilität gesorgt. Die Anbindung der Betonelemente ist entscheidend für die statische Integrität des Gebäudes und stellt sicher, dass es den komplexen Anforderungen hinsichtlich Tragfähigkeit und Verformungsresistenz gerecht wird.
Zusammenfassung des Projekts:
- Hotel in Straubing mit anspruchsvoller Ortbetonkonstruktion, Wand- und Deckenscheiben aus Stahlbeton.
- Gebäudeaussteifung durch Verbindung der Stahlbetondeckenscheiben mit Längs- und Querwänden aus Ortbeton.
2019
Fertigstellung





Kunden & Projekte
Wir bieten umfassende Beratung und umsetzungsstarke Lösungen für Neubauten, Umbauten und Sanierungen.
